北京启博科技有限公司
产品展示
首页 > 产品展示
  • 详细资料

该系列产品的功能是:

将餐饮污水中的废渣、油脂进行收集和提取,再将污水通过污水提升单元排出。


设备特点:

1、全封闭运行,无异味挥发。

2、模块化结构,安装运输方便。

3、智能自动除渣系统,运行稳定。

4、自洁反冲洗系统,维护方便。

5、・高效气浮油水分离系统,处理效果好。

6、可视排油系统安全便捷。

7、智能控制模块、液晶显示屏,功能强大。

8、・双控恒温加热系统、节能高效。

9、智能污水提升系统、运行稳定。 


一体化油脂分离设备工艺流程图:


 


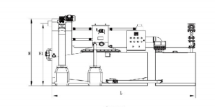
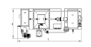
设备尺寸示意图 :

           

设备立面图 设备平面图

         

联系我们
关闭

客户服务热线

010-67635158

在线客服

在线客服